<< Back <<
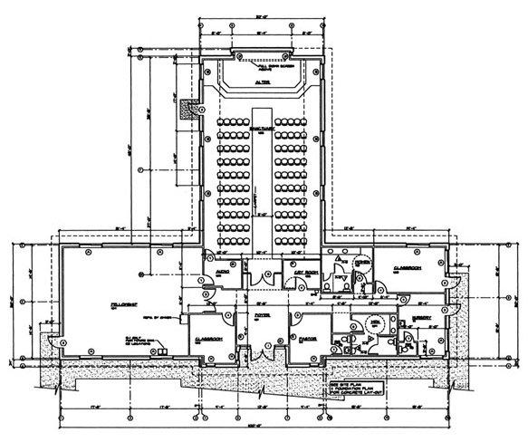
Korean American Methodist Church in Albuquerque

FLOOR PLAN
Design/Build :  Shiver Construction Co.
100 Iron Ave. SE
Albuquerque, NM 87102
Ph 344-3461